Tracing 2d Drawings in Rhino

Screenshot Image Tracing.png
This exercise tests the ability to tracing an existing image in Rhino for purposes of presentation. Working from a raster image, the student is required to trace the different lineweights into proper layers with detail and precision in Rhino and then export into Illustrator at a specific scale.
Assessment objectives

Assessment objectives include:

  • Ability to read building drawings accurately
  • Ability to draw with precision and detail
Exercise Type Problem Set
Evaluation Criteria
High Pass
Drawing is presented at a correct scale, lineweights show clear hierarchy.
Pass
Drawing lacks precision such as corners not touching or missing lines. Lineweights lack hierachy.
Low Pass
Drawing is at the wrong scale and missing many elements, does not "read" properly.
Fail
No work submitted.
Uses Tool(s) Tool:Rhino v4.x , Tool:Illustrator CS5
Uses Workflow(s) Workflow:519390

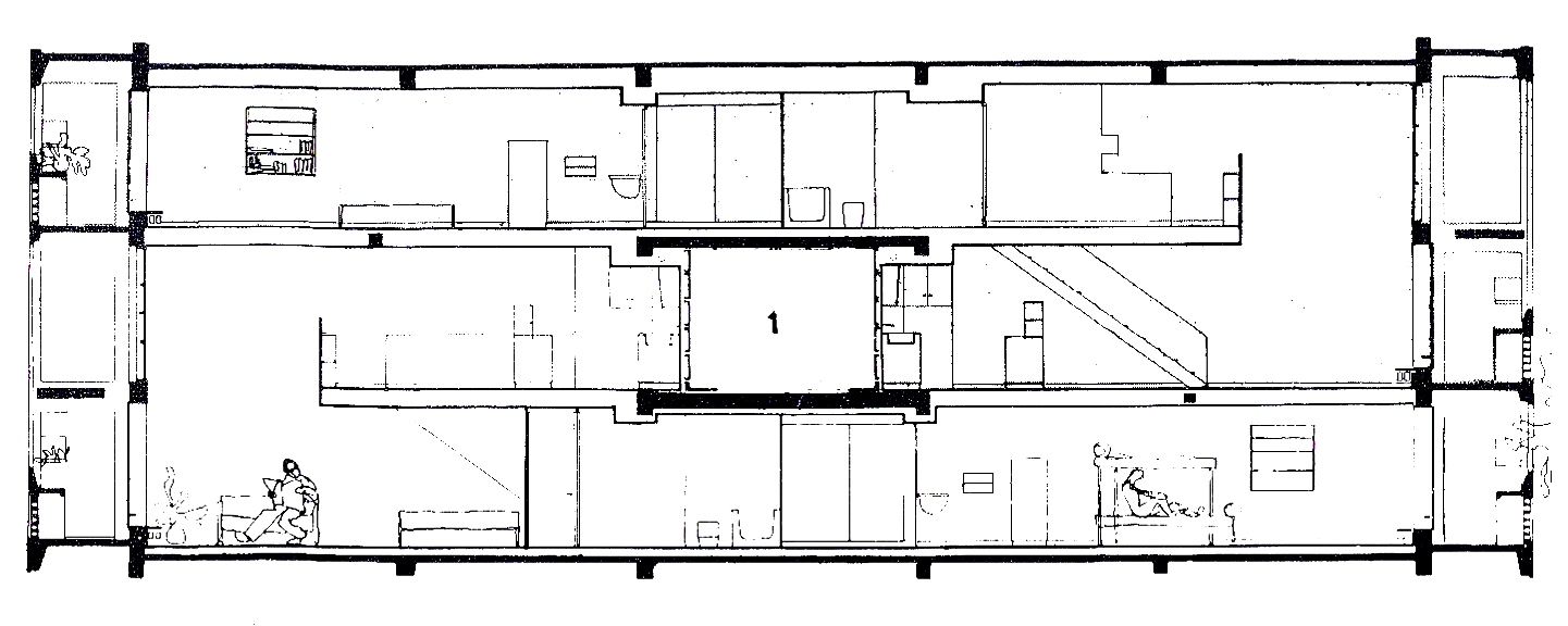
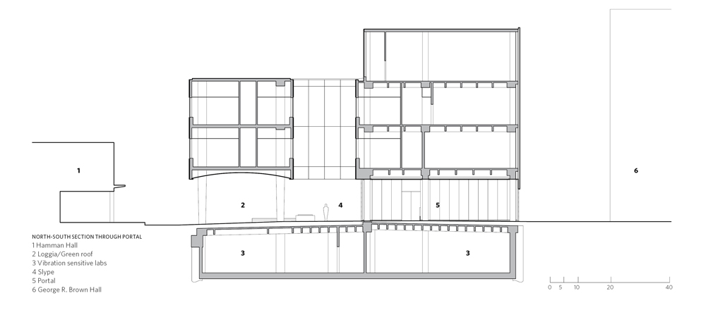
Re-produce one of the images below by tracing the drawing in Rhino and exporting to Illustrator. Final drawings should be scaled properly and fit onto an 11"x17" piece of paper. The title of the building, student name and drawing scale should be referenced on the final drawing.

Lineweights from the original drawing should be registered by organizing into proper layers. Details and people scalies can be edited according to the new drawing scale.

Case Study Images

1-plans-tracing.jpg Brockman Hall for Physics - Kieran Timberlake - Section.jpg Unite d'habitation section - corbusier.jpg Luis Aldrete Architects - SC PTV House - Plan.jpg